物件詳細

新築戸建て

新築戸建て 金沢市光が丘3丁目140番3

image1
image0
2026-02-101132531
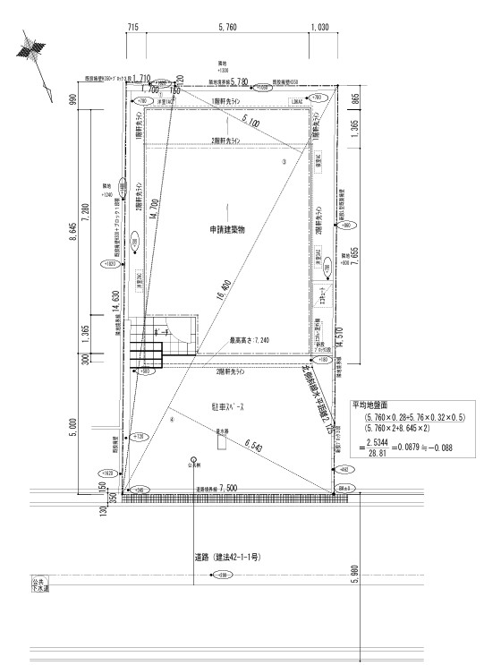
敷地配置図
previous arrow
next arrow
image1
image0
2026-02-101132531
敷地配置図
previous arrow
next arrow
種別
新築戸建て
価格
2,980万円(税込)
所在地
金沢市光が丘3丁目140番3
土地面積
109.07㎡(32.99坪)
地目
宅地
間口
北側:約7.5m
建ぺい率
60%
容積率
100%
幅員
北 約6.0 m
用途地域
第一種低層住居専用地域
都市計画
市街化区域
校区
額小学校/額中学校
建物面積
90.97㎡(27.51坪)
構造
木造ガルバリウム鋼板葺2階建
築年数
2026年4月完成予定
間取り
1F:LDK15.3 洋4.0 洗面 浴室 水洗 2F:洋7.5 洋5.5 洋5.3 WIC 水洗
電気
北陸電力
ガス
オール電化
飲水
公営
排水
下水道
負担金
-
交通
北鉄バス「大額新町」バス停より徒歩約3分
取引様態
専任
備考
駐車3台可能
  • 物件のお問い合わせ
  • 物件資料を印刷する